Sold

205, 2-46 David Low Way, Diddillibah

SOLD

2 1 1

Maroochy waters privacy

A unique fully fenced villa that is central and close to so much on the Sunshine coast must be a very good investment from all perspectives.

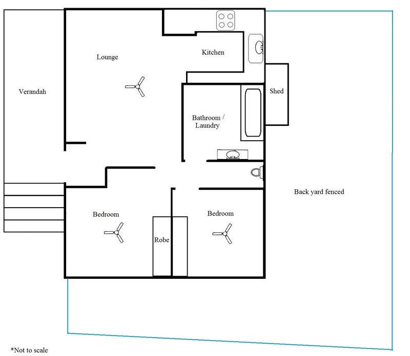
This two bedroom villa is situated in the central part of the Maroochy waters complex and has had a long history of being a good little earner and residence. only metres from the pool and car parking, boat ramp, fishing and swimming, entertainment and restaurant. Minutes drive to Maroochydore CBD, and some of the coasts great beaches. With a little TLC, this unit is ripe for the picking. The villa is fenced and the only one in the complex to have its very own private back yard.

Investment Information
Rental potential $380pw
Ground rental $485pm
Water & Electricity @ $100pm
No entry or exit fees

Whether for investment or using as a base, do not look past this little gem. A leasehold situation whereby, the grounds are already looked after, all you need to do is relax and unwind or comfortably watch your investment working

Features

Balcony Courtyard Fenced in-Ground Pool
2 1 1

Details

Address 205, 2-46 David Low Way, Diddillibah
Price SOLD
Property Type Residential
Property ID 2805
Category Unit
Floor Area 102.19 m2

Tools

Share This Property