Sold

2 Taylor Street, Marcoola

SOLD

4 2 2 556 m2

Soul of a beach house

The original beach house was moved to this location in the 1990’s. Quaint in its own way and situated opposite one of the best beaches in Queensland you can see why it has stood the test of time. In more recent years a substantial renovation has kept the core of the original home while simultaneously adding space and modern conveniences throughout the property.

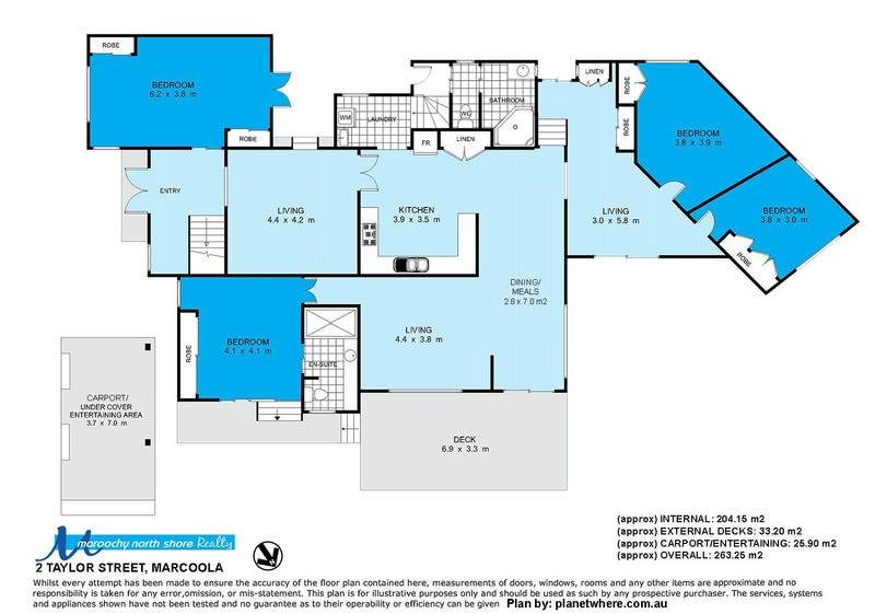
• 4 bedrooms, 2 bathrooms and 3 living zones
• Connecting covered decks & entertainment areas
• Newly updated kitchen, led lighting & redecorated
• 9.7Kw reverse cycle air-conditioner for all seasons
• Family room off pool area ideal for guest/teenagers
• Low maintenance yard, in-ground salt water pool
• Timber floors and casement doors to upper level
• Carport, very private/fenced 556sqm block
• Sliding gate for secure parking of additional vehicles
• Large enough for everyone to find their own space
• Easy care garden is ideal for busy people
• 2000 litre underground water tank
• Rendered exterior and modernised colour scheme
• Cross the road to Mudjimba Esplanade & beach entry
• 10 minutes drive to Maroochydore’s new CBD

The original hardwood floors are testament to just how solid the old beach house actually was. Now dressed in modern fittings and finishes you could be forgiven for thinking this was a much newer home. What’s certain though is this property offers more space and living options than most, and it’s still opposite one of the best beaches in Queensland.

Investment information:
Estimated permanent rental return: $520pw
Rates & Water: Approx. $3150/year

Features

Deck Outdoor entertainment area in-Ground Pool Water Tank
4 2 2 556 m2

Details

Address 2 Taylor Street, Marcoola
Price SOLD
Property Type Residential
Property ID 2511
Category House
Land Area 556 m2
Floor Area 241.54 m2

Tools

Share This Property