Sold

1119 David Low Way, Marcoola

SOLD

8 3 2 546 m2

Extended family or corporate airbnb

This huge beach house offers an array of living options for a large family or the ultimate investment property. A solid history of holiday/corporate rental, enough space for everyone, and plenty of room for long term visitors. Use as one large home or make the easy conversion to separate/dual living.

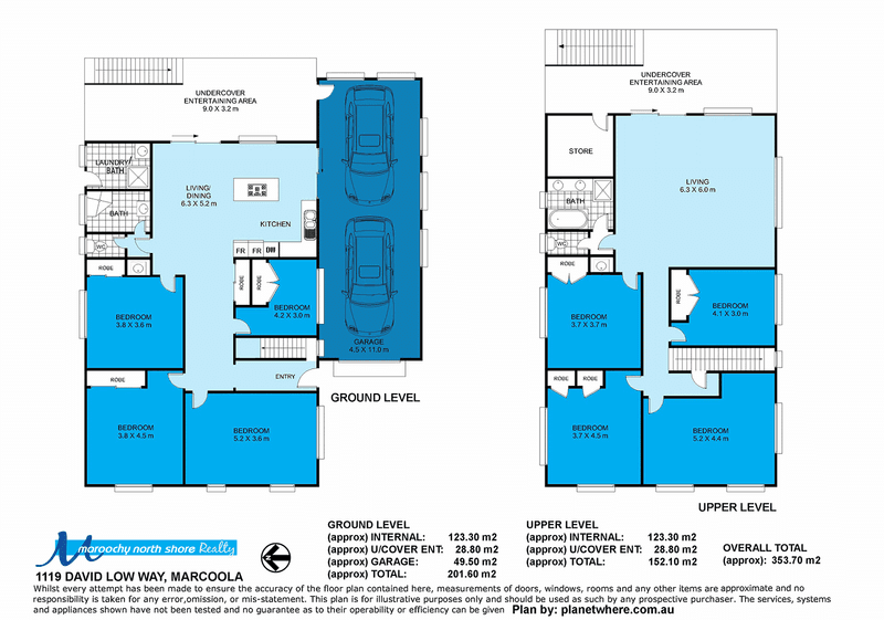
• One of the biggest homes in the suburb
• 8 beds, 3 baths, 2 full size outdoor areas
• Internal stairs, flexible floor plan/uses
• Possible to separate for dual living
• Entire home air conditioned
• 250m to the Patrolled beach and shops
• Large pool, plenty of entertainment space
• Room in upstairs living for second kitchen
• Tandem garage and storage/workshop
• Side access for boat or caravan
• Combined laundry/toilet/pool & beach shower
• Automatic sliding gate for secure entry
• Off street parking of 4 additional vehicles
• 12 min drive to new Sunshine Coast CBD
• House being sold fully furnished

Even though the house is a stand out property in its own right, the location really is something special too. A few minutes walk to the licensed surf club and buzzing cafe scene on the Esplanade means everything you could want is right there. Throw in Friday night markets, bus stop at your door and the sound of the surf crashing onto the shore at night and you have the ultimate beachside lifestyle. Whether it’s for you or your guests there is something for everyone here.

Investment information:
Estimated Permanent Rental Return: $650/week
Rates & water charges: Approx. $3150/year

N.B. House being sold fully furnished.

Features

Balcony Fenced in-Ground Pool
8 3 2 546 m2

Details

Address 1119 David Low Way, Marcoola
Price SOLD
Property Type Residential
Property ID 2761
Category House
Land Area 546 m2
Floor Area 343.73 m2

Tools

Share This Property