Sold

3 Third Ave, Marcoola

SOLD

2 1 1 535 m2

Beach Queenslander cottage

If you don't need a large family home and are seeking a private beachside existence this unique home is a must see. High ceilings, connecting covered deck areas and modernised internals are just the beginning.

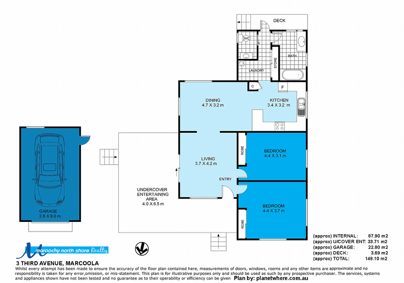
• Relocated cottage Queenslander. 600m to beach
• 2 bedrooms, updated kitchen and bathroom
• High ceilings, large connecting covered deck area
• Timber floors and unique character at every turn
• Fenced yard, separate single garage (power/light)
• Established trees and gardens for total privacy


The wide frontage and established gardens mean when you are out on the deck you have total privacy with just the sea breeze to keep you company. Even though it's a modest size indoors, the large covered deck means entertaining extra guests is easy. There's also still plenty of fenced yard for pets, a future pool or even a home extension. Nothing else like it.

Investment information:
Estimated permanent rental return: $375/week

Rates & Water: Approx: $2850/year

Features

Deck Outdoor entertainment area Fenced
2 1 1 535 m2

Details

Address 3 Third Ave, Marcoola
Price SOLD
Property Type Residential
Property ID 2531
Category House
Land Area 535 m2
Floor Area 111.48 m2

Tools

Share This Property